ΔΕΙΤΕ ΠΕΡΙΣΣΟΤΕΡΕΣ ΕΠΙΛΟΓΕΣ ΣΤΗΝ ΚΑΤΗΓΟΡΙΑ

' Θερμαντικά Σώματα '

Θερμαντικό Σώμα για Σάουνα EOS Mega HD

Φωτο 1

Περιγραφή

Κατασκευασμένο για να εντυπωσιάζει – θερμαντήρας σάουνας υψηλής ισχύος για πολύ μεγάλες επαγγελματικές καμπίνες σάουνας.

Ειδικά σχεδιασμένο για θεματικές σάουνες και σάουνες εκδηλώσεων. Το EOS Mega συνδυάζει την κατασκευή που είναι βελτιστοποιημένη για εντατική εμπορική χρήση με τον μοντέρνο, κομψό σχεδιασμό.

Έκδοση "Βαρέως τύπου" με εσωτερική καλωδίωση ως τεράστιες χάλκινες ράγες. Οι χάλκινες ράγες ως στάνταρ εσωτερική καλωδίωση καθιστούν τον θερμαντήρα υψηλής απόδοσης Mega HD ιδανικό για σάουνες με ιδιαίτερα εντατική εμπορική χρήση.

Με εύρος ισχύος από 42 kW έως εντυπωσιακά 72 kW, αυτό το μοντέλο είναι ιδανικό για εκτεταμένες τελετές έγχυσης σάουνας. Το EOS Mega είναι ένας επιδαπέδιος θερμαντήρας σάουνας για τη φινλανδική (ξηρή) σάουνα.

Η εξαιρετικά μεγάλη αποθήκη πέτρας 150 kg είναι πλήρως διαχωρισμένη από τα θερμαντικά στοιχεία. Μοναδικά προφίλ σχήματος V σε δύο στρώσεις χρησιμεύουν ως ο πυθμένας της αποθήκης πέτρας και εξασφαλίζουν αποτελεσματική εξάτμιση του νερού και βελτιωμένη ροή αέρα.

Ισχύς
42,0 kW
48,0 kW
54,0 kW
60,0 kW
72,0 kW

Τα πλεονεκτήματά σας

  • Παγκοσμίως μοναδική γκάμα ισχύος από 42 έως 72 kW.
  • Εξαιρετικά μεγάλος όγκος πέτρας περίπου 150 kg.
  • Μεγάλη επιφάνεια έγχυσης σάουνας 70 × 110cm.
  • Εξειδικευμένα σχεδιασμένη, ενισχυμένη κατασκευή από ανοξείδωτο χάλυβα κορυφαίας ποιότητας, βελτιστοποιημένη για εντατική εμπορική χρήση.
  • Βέλτιστη σχέση μεταξύ όγκου πέτρας και ικανότητας μεταφοράς αέρα για γρήγορους χρόνους θέρμανσης και ισχυρές πιτσιλιές νερού.
  • Εύκολη συντήρηση καθώς τα θερμαντικά στοιχεία μπορούν να αντικατασταθούν χωρίς την αφαίρεση των πετρών σάουνας.
  • Μοναδικά προφίλ σχήματος V σε δύο στρώσεις εξασφαλίζουν αποτελεσματική και πλήρη εξάτμιση κατά την έγχυση.
  • Η αποθήκευση πέτρας χωρισμένη από τα θερμαντικά στοιχεία - εξασφαλίζει βέλτιστη μεταφορά αέρα και εγγυάται μεγάλη διάρκεια ζωής για τα θερμαντικά στοιχεία.
  • Σύγχρονος, διαχρονικός σχεδιασμός με ομοιόμορφη εμφάνιση σε όλες τις πλευρές. Χωρίς τυπική «πίσω πλευρά». Συνδέσεις στο κάτω μέρος.
  • Ιδανική για τοποθέτηση μπροστά από γυαλί ή στο κέντρο της σάουνας.
  • EOS Mega HD: Έκδοση "Βαρέως τύπου" με χάλκινες ράγες ως στάνταρ εσωτερική καλωδίωση, και επομένως ιδανική για σάουνες με ιδιαίτερα εντατική χρήση.

Τεχνικές προδιαγραφές

Ηλεκτρική σύνδεση: 400 V 3N ~ 50/60 Hz

Προστασία ασφάλειας (μονάδα ελέγχου): 3 x 16 A

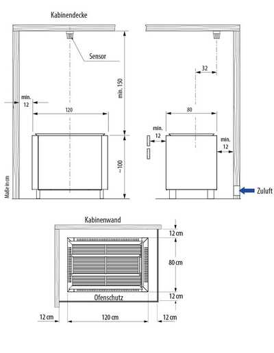
Διαστάσεις Υ/Π/Β, σε cm: 100 / 120 / 80

Γέμισμα με πέτρα περίπου: 150 kg

Απαιτείται επέκταση ισχύος (42-54/60-72 kW): 1x PEB 18 + 1x PEB 36 / 2 x PEB 3

 

Δεδομένα

 

Ισχύς   

Για μέγεθος καμπίνας σάουνας

Ελάχιστο μέγεθος εισόδου και εξόδου αέρα

Βάρος χωρίς πέτρες

42 kW

    65 - 80 m³

   50 x 12 cm   112 κιλά
48 kW

    70 - 90 m³

   60 x 12 cm   114 κιλά

54 kW

    80 - 100 m³

   70 x 12 cm   116 κιλά 
60 kW

   100 - 130 m³

   70 x 12 cm   118 κιλά
72 kW

   130 - 160 m³

   80 x12 cm   120 κιλά

 

 

ΣΑΣ ΕΝΔΙΑΦΕΡΕΙ; ΕΠΙΚΟΙΝΩΝΗΣΤΕ ΜΑΖΙ ΜΑΣ

ΔΕΙΤΕ ΠΕΡΙΣΣΟΤΕΡΕΣ ΕΠΙΛΟΓΕΣ ΣΤΗΝ ΚΑΤΗΓΟΡΙΑ


' Θερμαντικά Σώματα '