ΔΕΙΤΕ ΠΕΡΙΣΣΟΤΕΡΕΣ ΕΠΙΛΟΓΕΣ ΣΤΗΝ ΚΑΤΗΓΟΡΙΑ

' Θερμαντικά Σώματα '

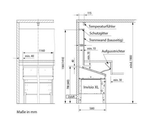
Θερμαντικό σώμα για σάουνα της Eos σειρά Inviso XL

Φωτο 1

Περιγραφή

Η EOS Invisio είναι μια ειδική σειρά από μοναδικές κρυφές θερμάστρες σάουνας "κάτω από τον πάγκο", οι οποίες εγκαθίστανται κάτω από τους πάγκους σάουνας με ένα διαχωριστικό τοίχωμα με κενό μόνο 10 cm από τον κύριο τοίχο της σάουνας.

Χάρη στην κατασκευή τους και την ειδική εγκατάστασή τους, οι θερμάστρες EOS Invisio προσφέρουν υψηλά πρότυπα ασφαλείας και εξοικονομούν πολύτιμο χώρο στην καμπίνα. Δεν υπάρχει πλέον κίνδυνος τυχαίας επαφής με τη θερμάστρα και η σάουνά σας θα φαίνεται πιο ευρύχωρη στο εσωτερικό.

Παρά την κρυφή εγκατάσταση, οι παραδοσιακές εγχύσεις είναι φυσικά δυνατές. Όλες οι θερμάστρες EOS Invisio περιλαμβάνουν μια χοάνη νερού από ανοξείδωτο χάλυβα με σωλήνα σιλικόνης. Η ειδική υδρορροή στο εσωτερικό της θερμάστρας απλώνει το νερό σε όλο το πλάτος της θερμάστρας για να εξασφαλίσει γρήγορη εξάτμιση.

Η EOS Invisio XL είναι ιδανική για εντατικές εμπορικές λειτουργίες της φινλανδικής σάουνας. Εξαιρετικά μεγάλη αποθήκη πέτρας με όγκο έως 75 kg - ιδανική για ισχυρές εγχύσεις. Το ύψος της θερμάστρας μπορεί να ρυθμιστεί +/- 15 cm.

Ισχύς
9,0 kW
12,0 kW

Τα πλεονεκτήματά σας

  • Υψηλή ασφάλεια χρήστη, χάρη στην κρυφή εγκατάσταση.
  • Κατασκευή φιλική προς το σέρβις.
  • Παραδοσιακά πιτσιλίσματα νερού στις πέτρες εξακολουθούν να είναι δυνατά - περιλαμβάνεται σετ έγχυσης νερού με χωνί από ανοξείδωτο χάλυβα.
  • Περιλαμβάνει σχάρα ασφαλείας - αξιόπιστη προστασία από αντικείμενα που πέφτουν πάνω στη θερμάστρα.
  • Βελτιστοποιημένη απόδοση θέρμανσης, χάρη στην ειδική θέση των θερμαντικών στοιχείων - για ταχύτερους χρόνους θέρμανσης.
  • Στιβαρή κατασκευή. Ρυθμιζόμενο ύψος (+/- 15 cm).
  • Σχεδιασμός εξοικονόμησης χώρου - απαιτούνται μόνο 10 cm για τον τοίχο με σήτα.
  • Εξαιρετικά μεγάλος χώρος αποθήκευσης πέτρας με όγκο πέτρας έως 75 kg.

Τεχνικές προδιαγραφές

Ηλεκτρική σύνδεση: 400 V 3N ~ 50 /60 Hz

Προστασία ασφάλειας (μονάδα ελέγχου): 3 x 16 A

Διαστάσεις Υ/Π/Β, σε cm: 80 x 116 x 58

Για μέγεθος καμπίνας σάουνας (9,0 / 12,0 kW): 9 - 14 m³ / 14 - 18 m³

Ελάχιστο μέγεθος εισόδου και εξόδου αέρα (9,0 / 12,0 kW): 35 x 6 cm / 35 x 7 cm

Βάρος χωρίς πέτρες και συσκευασία (9,0 / 12,0 kW): 25,5 kg / 27,5 kg

Πλήρωση με πέτρα: 75 kg

Απαιτείται επέκταση ισχύος (9,0 / 12,0 kW): όχι / PEB 10

ΣΑΣ ΕΝΔΙΑΦΕΡΕΙ; ΕΠΙΚΟΙΝΩΝΗΣΤΕ ΜΑΖΙ ΜΑΣ

ΔΕΙΤΕ ΠΕΡΙΣΣΟΤΕΡΕΣ ΕΠΙΛΟΓΕΣ ΣΤΗΝ ΚΑΤΗΓΟΡΙΑ


' Θερμαντικά Σώματα '